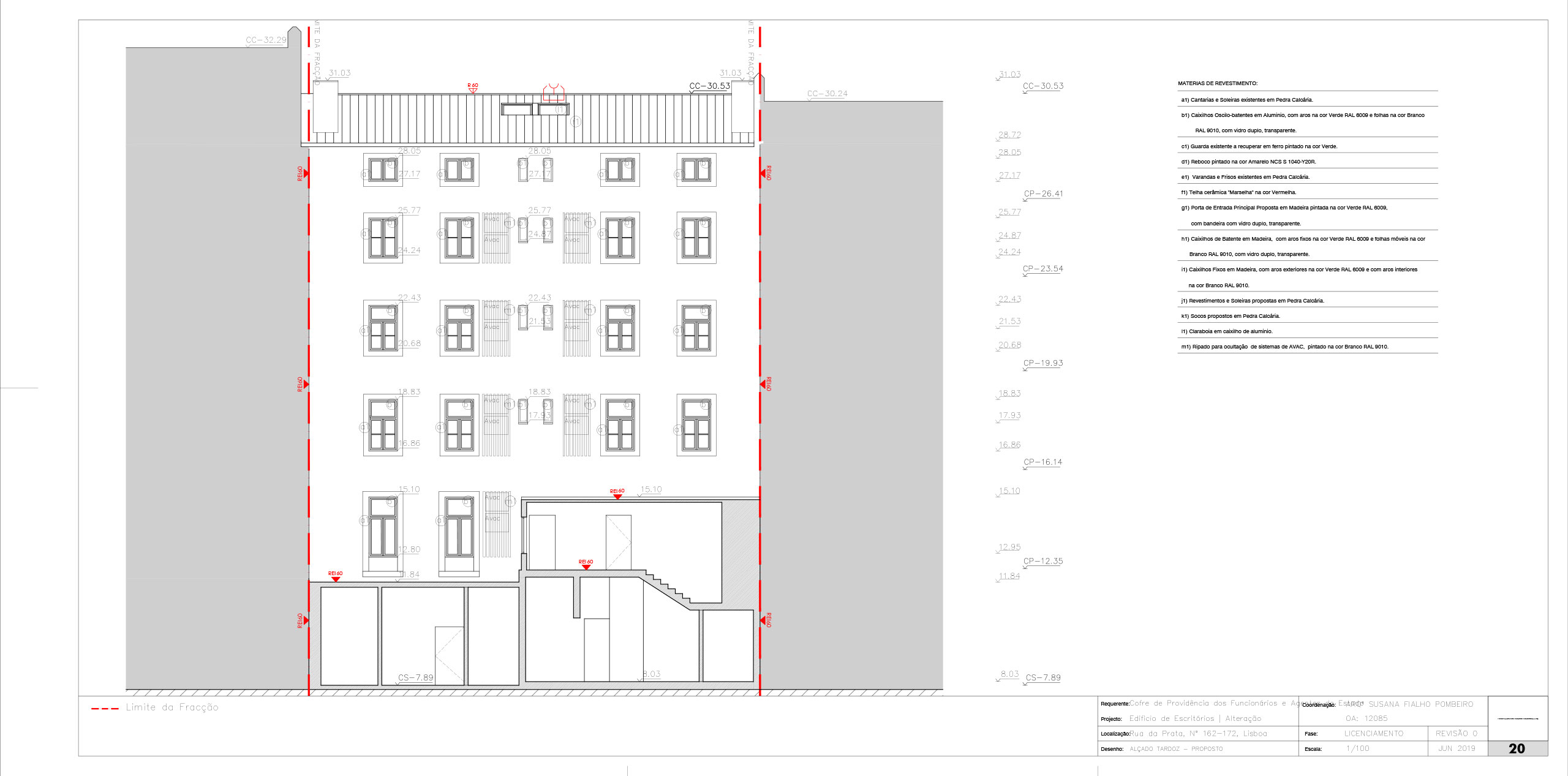
Edifício de Escritórios
Projectos
2019
Local
Lisboa - Rua da Prata
Cliente
projeto realizado para Pitta Soareas & Parteners
Informações
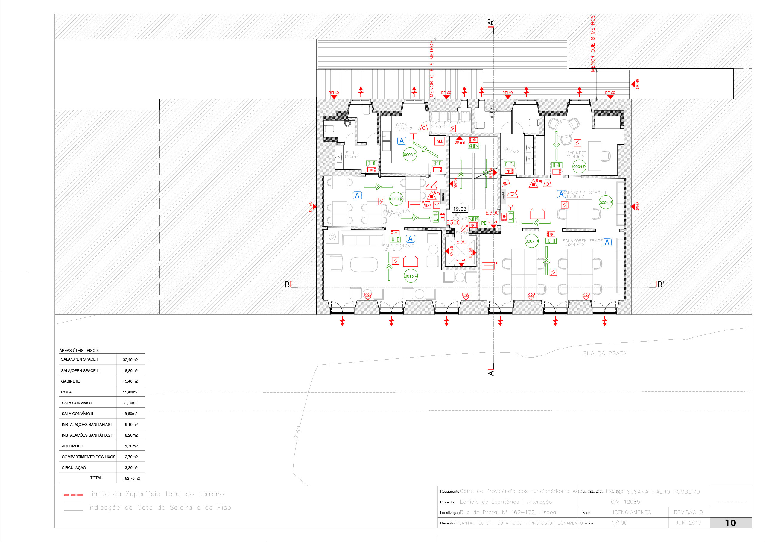
Projeto de Segurança Contra Riscos de Incêndio
Equipa
Arq. António Teodósio Ferreira




